注塑机行业冷水机如何选型(注塑行业冷水机选型方法)
注塑设备的运行,模具冷却阶段,占到塑料产品成型周期的50%以上,冷却不好会造成塑胶产品的品质下降。那么在注塑行业中,运用冷水机组要注意哪些问题呢?
下面凯德利冷水机小编从冷水机组选型、工程水系统原理、循环管路设计3方面,为你介绍。
注塑冷水机组的选型
选型一般根据项目具体情况,结合地理位置、天气、建筑面积、客户需求几方面,类型一般是风冷式冷水机和水冷冷水机组,若对方工厂车间有冷却塔,可优选水冷机组。
另外客户的具体情况,会依据冷水机主机类型、制冷量、输入功率、注塑设备数量等进行选型。一般制冷量根据料筒容量或锁模力估算冷水机组制冷量大小。

凯德利冷水机结合一出口的注塑冷水机组,实际案例来介绍。对方选取的冷水机组制冷量400HP,用于多台注塑机车间进行集中冷却,对方工厂有固定冷却水塔等设备。
设备选用的标准既要保证生产,也要节约用水用电,所以方案中料筒喂料段冷却和液压油的冷却,采用冷却塔冷却水常温冷却,比较经济,而注塑模具成型冷却采用冷冻水。
因制冷量较大,选取水冷冷水机组类型较为合适。
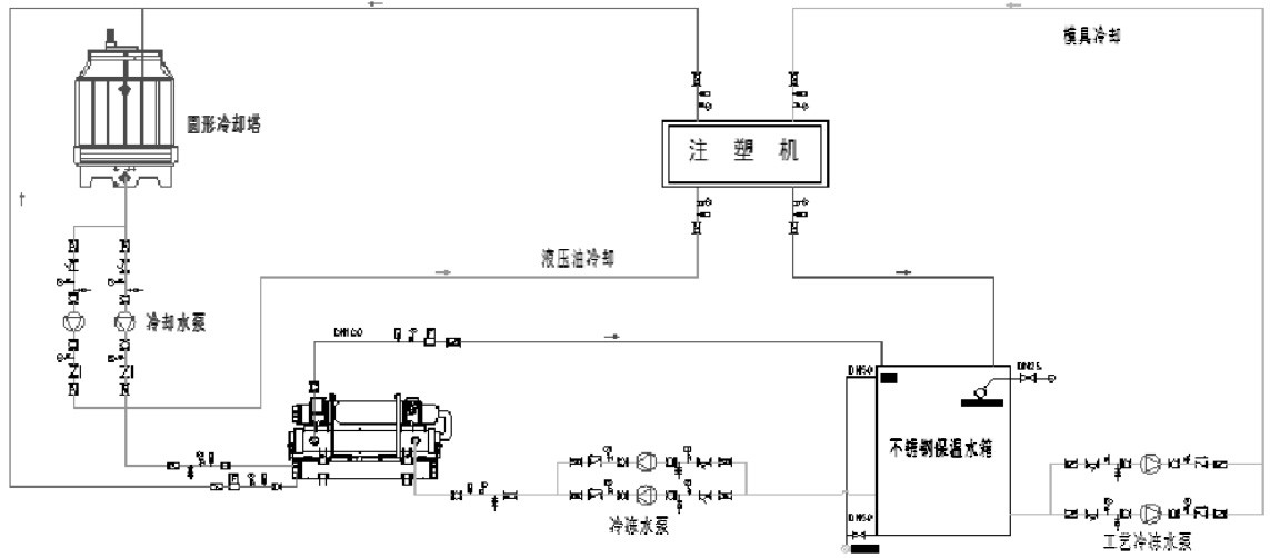
冷水机组水系统原理图示:

冷冻水系统2路循环:冷冻水箱——冷冻水泵——冷水机组——冷冻水箱;
冷冻水箱——冷冻水泵——注塑机车间。
冷却水系统2路循环:
冷却塔——冷却水泵——冷水机组——冷却塔;
冷却塔——冷却泵——注塑机车间——冷却塔,
完成对液压油和料筒喂料段的冷却及冷水机组的冷却。
其中冷冻水系统中,水泵一用一备,匹配优良蝶阀,软接,温度表,压力表,截止阀,保证系统水流压力对水泵冲击,防止断路,水泵冲击管道的影响。

冷却塔及冷却水量的计算:
冷却水量是冷却水塔的选型参数,它由两部分水量确定,一个是注塑机车间的冷却用水之和,另一个是液压油及料筒喂料段用冷却水。
再这个冷却水量的基础上,留有余量(因为有水损耗),通常为计算水量的1.1到1.3倍。

循环管路设计:
循环管路的设计,主要考虑管道设置和排气,因为要提前预制工艺设备、水处理设备管道等工程管路,管路充水、水流过快,会引起气阻。
因此管道尽可能架空设计,如确有困难,可选择管沟、埋地的方式。
水泵的流量和扬程通过生产工艺和管网的水力计算确定。确定循环水泵扬程时,要考虑其进出水压力的因素。

不锈钢水箱的设计
水箱的作用是保证水循环系统恒温恒压,快速补水,减少水温波动对注塑产品的影响,注塑机对冻水一般要求 5到15度;
注塑工业,最终生产出的产品由企业工艺决定,通过对工艺冷却系统的设计,改造,不仅有利于注塑产品品质的提升,更能节省能源。
推荐新闻
-
3月25-27日 | 凯德利邀您共鉴中国氢能展(北京)
2026-03-19 -
引领恒温技术,共创绿色未来 | 凯德利集团2026全球精英招募中
2026-03-12 -
校友情深促合作,产业协同谋共赢
2026-03-12 -
强链协同 智造未来 | 凯德利与科锐晟签署战略合作协议
2026-03-12 -
凯德利-35℃极端工况冷水机组通过国家级检测,以专业实力助力工业供热转型
2026-03-12







